Descrição


Para viabilizar a implantação do Metrô, a Prefeitura Municipal de Curitiba instaurou um processo de Parceria Público Privada – PPP - e chamou empresas interessadas em apresentar estudo de viabilidade através de Procedimento de Manifestação de Interesse (PMI).
Para atender a esta expectativa, foi desenvolvido, junto com a empresa Intertechne Consultores, estudos para um “Planejamento Urbano de Transporte Integrado”, tendo por referência a região metropolitana e os diversos modais de transporte que podem ser utilizados, visando, com o metrô, uma melhoria nos serviços a serem oferecidos para a população.
A proposta consiste em uma visão de longo prazo para o sistema de mobilidade urbana com o desenvolvimento da linha Azul do Metrô associada ao projeto de Veículo Leve sobre Trilhos – VLT - e a ampliação do sistema atual de canaletas exclusivas de ônibus BRT – Bus Rapid Transit.
O projeto contemplou 13 estações, sendo uma em vala e 12 em poço descentralizado, túnel de ligação e plataforma em NATM, além de 15 poços de ventilação e saída de emergência, sendo 14 com o poço descentralizado da via e um com o poço centralizado à via.
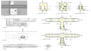
O Terminal Central Intermodal corresponde à Estação Central do Metrô e é o local onde será realizada a integração com outros modais de transporte (férreo, metrô e ônibus). Sendo assim, neste local estão previstas as conexões: das linhas de BRT com os demais sistemas; estação do VLT – Centro Norte; estação do VLT Centro Sul Aeroporto Afonso Pena; e estação central do trem turístico.
Neste local será também possível o acesso a importantes polos instalados na região: Mercado Municipal – polo de compras e gastronomia; novo campus da UFPR; Estação rodoviária interestadual e intermunicipal; área de revitalização urbana do Rebouças, conforme previsto no programa Tecnoparque.
Ficha Técnica


PMI Metro de Curitiba

Local: Curitiba - Paraná

Data do Projeto: 2014

Fase do Projeto: Estudo preliminar

Equipe: Tetra + Intertechne

Cliente: Prefeitura de Curitiba

PMI Metro de Curitiba