Descrição


O projeto do Centro de Formação Integrado dos Operadores da Usina Hidrelétrica tem como objetivo principal a criação de espaços para a capacitação e suporte aos funcionários, e, ao mesmo tempo, ser um local de divulgação e representação da imagem da usina.
As premissas foram: aproveitamento da topografia, percepção visual da paisagem e separação definida dos usos. A partir disso, a edificação foi desenvolvida em três niveis de forma que não exista interferência entre as atividades realizadas. A orientação da edificação e acomodação na declividade do terreno juntamente com a criação de uma varanda com fachadas de vidro privilegiam a vista da barragem.
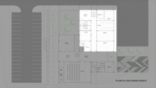
No nível superior, um hall de acesso distribui os visitantes para a área do Núcleo de Informação e Cultura ou para o auditório. Através de uma escadaria e uma rampa, se acessa o nível intermediário, onde se encontra uma área de acomodação para o auditório que também pode ser utilizada para eventos e coquetéis, dando acesso à varanda que tem vista para a barragem. Uma sala administrativa completa o conjunto, além de sanitários, depósito e uma área de apoio para eventos com acesso à cozinha.
Um segundo acesso ao prédio se encontra no nível intermediário. Sendo que este tem a função de recepcionar as pessoas que irão ministrar ou receber os treinamentos teóricos. Está dividido em três salas de aula e os treinamentos que necessitem de computadores, numa sala exclusiva para informática. Conta com uma sala de apoio para o corpo docente, além de sanitários, copa com acesso à cozinha e uma biblioteca. Esta área é dividida do salão para eventos por uma porta dupla, por motivos operacionais, sendo que ambas as áreas possuem infraestrutura suficiente para funcionarem de forma independente.
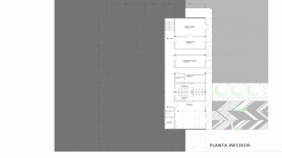
No nível inferior há um segundo hall de acesso que também recepciona pessoas que receberão treinamento prático. Este nível conta com três laboratórios, cada um com seu uso específico, além de vestiários, depósitos e um refeitório. O acesso de pessoas com dificuldade de locomoção é feito através de elevador (ligado ao salão de eventos no nível intermediário) ou por uma porta externa, onde se chega de carro ou ônibus. Este nível dá acesso à uma praça externa com tratamento paisagístico, que estimula o convívio nos momentos de intervalo das aulas.
Ficha Técnica


Centro de Formação Lauca

Local: Lauca, Angola

Data do Projeto: 2013

Área Construída: 1.682 m²

Fase do Projeto: Básico

Equipe: Tetra + Intertechne

Cliente: Odebrecht

Centro de Formação Lauca