en
|
pt
contato
compliance
publicações
livros
revistas
a empresa
projetos
esportivo
institucional
viário
aeroporto
metrô
vistoria cautelar
residencial
fundações
home
Descrição
A Avenida 23 de maio foi responsável por uma forte ruptura urbana na região. Os pontos de transposição desenvolvidos e seus arredores se tornaram focos urbanos privilegiados.
Em decorrência disso, há uma intensa verticalização nas proximidades da Estação São Joaquim, que, além de ser uma região adensada, é caracterizada por um eixo de polarização de uso de comércio e serviços.
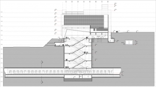
Situada a 30 metros ao norte do encontro entre a Av. Liberdade e a Rua Pedroso, a Estação São Joaquim destaca-se pela integração metroviária com a Linha 1 - Azul.
Essa estação caracteriza-se pelo poço circular de aproximadamente 43 metros de profundidade abaixo do nível do solo e um edifício na superfície, diminuindo de forma considerável o volume de escavação. Plataforma em método NATM (New Austrian Tunnelling Method) composta por dois túneis interseccionados.
O edifício que se destaca na superfície comporta os níveis de áreas técnicas e operacionais, além da base de manutenção da linha (6-Laranja). Possui uma grande cúpula estruturada por perfis metálicos, além de vidros laminados e temperados de alto desempenho térmico, a fim de permitir a máxima permeabilidade de luz no interior da estação.
Os revestimentos da Estação São Joaquim chamam atenção devido ao uso de placas cêramicas estruturadas no interior e exterior da estação. Além de contar com um painel de brise metálico com pintura eletrostática voltado para a Rua Pedroso e Rua Barão de Ijuí.
Ficha Técnica
Estação São Joaquim
Local: São Paulo, São Paulo
Data do Projeto: 2011-2012
Área Construída: 16.098,27 m²
Fase do Projeto: Básico
Equipe: Tetra + Setepla Tecnometal
Cliente: Companhia do Metropolitano de São Paulo
Estação São Joaquim