en
|
pt
contato
compliance
publicações
livros
revistas
a empresa
projetos
esportivo
institucional
viário
aeroporto
metrô
vistoria cautelar
residencial
fundações
home
Descrição
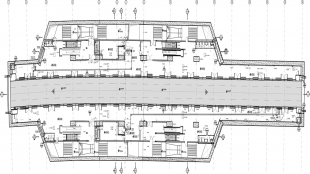
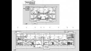
A Estação Faria Lima está localizada em Pinheiros, no Largo da Batata, e seus acessos estão no cruzamento da Avenida Brigadeiro Faria Lima e Rua Teodoro Sampaio.
A estação é totalmente enterrada, mas houve uma forte preocupação em adotar revestimentos que tornem o ambiente claro e amplo. O uso de vidro, aço e cerâmica marcam o interior da estação Faria Lima.
O projeto teve, desde sua concepção, a preocupação com o acesso de pessoas portadoras de deficiência física ou mobilidade reduzida.
Ficha Técnica
Estação Faria Lima
Local: São Paulo, SP
Data do Projeto: 2007-2010
Área Construída: 11.739,44m²
Fase do Projeto: Básico+Executivo
Equipe: Tetra + Figueiredo Ferraz Engenharia
Cliente: Consórcio Via Amarela
Estação Faria Lima